グリーンミユキ吉野町 埼玉県さいたま市北区吉野町2丁目|1,980万円の中古マンション|分譲住宅や新築物件|ララハウス株式会社大宮支店
| 価格 | 1,980万円 ![]() |
||||
|---|---|---|---|---|---|
| 所在地 | 埼玉県さいたま市北区吉野町2丁目
この地域周辺の物件を見る |
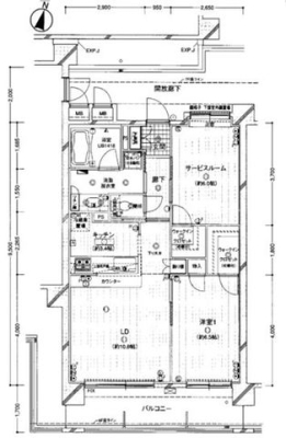
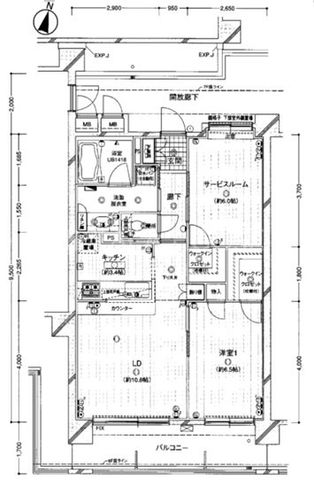
専有面積 | 56.4u | 築年月 | 2005年5月築 |
| 交通 |
湘南新宿ライン高海 宮原 バス5分 宮原四丁目 停歩4分
埼玉新都市交通 今羽 徒歩28分 |
管理費等 | 11,000円 | 修繕積立金 | 14,330円 | 所在階/階数 | 5階/地上7階建 | バルコニー面積 | 11.05m² |
| 間取り | 1SLDK (-) | ||||
| 特徴 |
|
|---|---|
| セールスコメント | ◆随時現地へのご案内受付中です♪ 「いまから見たい!」など、当日のご連絡も大歓迎です! ◆ご希望の条件を遠慮なくお話し下さい。 ララハウスのホームページをご覧ください。 「ララハウス大宮支店」で検索! ◆【0120-22-8282】へお気軽にお問い合わせください。 ◆電車でお越しの方、現地までの行き方が不安という方、 ご希望ございましたら付近までお迎えにあがります。 お気軽にご相談くださいませ。 最新情報を毎日更新中です! 弊社ホームページをご利用くださいませ☆☆ |
| 採光面 | 南 | 取引態様 | 仲介 |
|---|---|---|---|
| 現況 | 空家 | 引渡し | 即時 |
| 総戸数 | - | 構造 | RC造 |
| テラス面積 | - | 専用庭面積 | - |
| 駐車場 | - | 駐輪場 | - |
| 建物権利 | - | 土地権利 | 所有権 |
| 用途地域 | 第一種住居地域 - - | 管理態様 | 管理形態:自主管理 管理組合:あり 管理会社:株式会社エーカン |
| 情報更新日 | 2026年05月20日 | 次回更新日 | 2026年06月03日 |
| 小学校区 | さいたま市立宮原小学校 (埼玉県さいたま市) この学区の他の物件を見る |
中学校区 | 宮原中学校 (埼玉県さいたま市) この学区の他の物件を見る |
|---|
| 価格 | 万円 | ||
|---|---|---|---|
| 年利率 | % |
||
| ボーナス払い | 返済年数 | ||
| 頭金 | 直接入力する | 万円 | |

毎月のご返済額 |
ボーナス(×年2回) |
物件価格1,980万円 |
![]() |
![]() |
さいたま市北区吉野町2丁目
1980万円~1999万円 |
◆宮原駅徒歩24分。バス5分「宮原四丁目」停歩4分♪
◆1SLDK・南向き・5階・陽当り良好♪
◆全居室収納付き
◆オートロック・宅配BOX完備