サーパス上尾第2 埼玉県上尾市西宮下3丁目|2,690万円の中古マンション|分譲住宅や新築物件|ララハウス株式会社大宮支店
| 価格 | 2,690万円値下がり ![]() |
||||
|---|---|---|---|---|---|
| 所在地 | 埼玉県上尾市西宮下3丁目
この地域周辺の物件を見る |
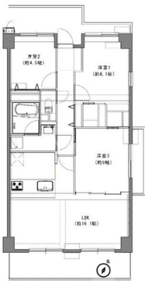
専有面積 | 73.79u | 築年月 | 1994年2月築 |
| 交通 |
湘南新宿ライン高海 上尾 徒歩17分
埼玉新都市交通 吉野原 徒歩40分 |
管理費等 | 15,942円 | 修繕積立金 | 14,000円 | 所在階/階数 | 4階/地上6階建 | バルコニー面積 | 12.9m² |
| 間取り | 3LDK (-) | ||||
| 特徴 |
|
|---|---|
| セールスコメント | ◆随時現地へのご案内受付中です♪ 「いまから見たい!」など、当日のご連絡も大歓迎です! ◆ご希望の条件を遠慮なくお話し下さい。 ララハウスのホームページをご覧ください。 「ララハウス大宮支店」で検索! ◆【0120-22-8282】へお気軽にお問い合わせください。 ◆電車でお越しの方、現地までの行き方が不安という方、 ご希望ございましたら付近までお迎えにあがります。 お気軽にご相談くださいませ。 最新情報を毎日更新中です! 弊社ホームページをご利用くださいませ☆☆ |
| 採光面 | 東南 | 取引態様 | 仲介 |
|---|---|---|---|
| 現況 | 空家 | 引渡し | 即時 |
| 総戸数 | - | 構造 | RC造 |
| テラス面積 | - | 専用庭面積 | - |
| 駐車場 | - | 駐輪場 | - |
| 建物権利 | - | 土地権利 | 所有権 |
| 用途地域 | 第一種住居地域 - - | 管理態様 | 管理形態:委託(通勤) 管理組合:あり 管理会社:- |
| 情報更新日 | 2026年04月20日 | 次回更新日 | 2026年05月04日 |
| 小学校区 | 上尾市立鴨川小学校 (埼玉県上尾市) この学区の他の物件を見る |
中学校区 | 南中学校 (埼玉県上尾市) この学区の他の物件を見る |
|---|
| 価格 | 万円 | ||
|---|---|---|---|
| 年利率 | % |
||
| ボーナス払い | 返済年数 | ||
| 頭金 | 直接入力する | 万円 | |

毎月のご返済額 |
ボーナス(×年2回) |
物件価格2,690万円 |
◆上尾駅徒歩17分・イオン上尾徒歩8分♪
◆3LDK・南東向き・4階角部屋・陽当り良好♪
◆新規フルリノベ済
◆全居室収納付き
◆長期修繕計画あり