スマホで物件を見る

セザール東大宮|東大宮駅の中古マンション購入・売り物件、売却査定・相場・売却価格情報|埼玉県さいたま市見沼区東大宮4丁目のマンション情報|ララハウス株式会社大宮支店

大宮・さいたま市・上尾市・蓮田市の不動産はララハウス大宮支店
0120-22-8282
TOPページ >
マンションカタログ >
さいたま市見沼区 >
セザール東大宮

セザール東大宮

セザール東大宮は埼玉県さいたま市見沼区東大宮4丁目59-1にあるマンションで、最寄り駅は湘南新宿ライン宇須の「東大宮」から徒歩8分の距離にあります。1987年9月に地上6階RC造で建てられた全のマンションです。

住所 埼玉県さいたま市見沼区東大宮4丁目59-1 
交通 湘南新宿ライン宇須 東大宮/徒歩8分
埼玉新都市交通 吉野原/徒歩23分
階数/構造 地上6階/RC造
総戸数
築年月 1987年9月
学区 小学校名:見沼小学校
中学校名:泰平中学校
マンション購入をお考えの方 売り出したら教えて!

売り出し物件を優先的にご紹介!

マンション売却をお考えの方 探している人がいたら教えて!

まずは無料査定!も可能です

セザール東大宮で販売中の物件が2件あります。

※各種情報と差異がある場合は現況優先となります。
※建物竣工時に撮影した竣工写真を掲載している場合があります。その場合、現状と異なる可能性があります。
※物件情報の学区情報について
当サイト物件情報に記載されております通学区域(学区)情報は、国土数値情報ダウンロードサービスが提供する小学校区データ【2016年度】及び中学校区データ【2016年度】を元に加工したものですので、記載情報が現在の学区域と異なる場合がございます。 国土数値情報ダウンロードサービスのWEBサイト上で記述通り、データは必ずしも正確とは言えません。また、通学区域(学区)は毎年見直しの対象となりますので、そちらを踏まえ学区情報は参考としてご活用下さい。

規模 地上6階
駐輪場
管理形態 委託(通勤)
駐車場
用途地域 第一種住居地域
施工

近隣スポット情報

周辺地図・アクセス

セザール東大宮で販売中の物件一覧

販売中2件(内会員物件1件)

チェックを入れるとまとめてお問合わせができます。
会員限定物件
セザール東大宮 3階
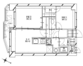
価格2,280万円 広さ2DK(44.02m2採光面東南

詳細

セザール東大宮を
買いたい

売り出したら教えて!

『セザール東大宮』の販売情報を
優先的にお知らせいたします。

セザール東大宮を
売りたい

探している人がいたら教えて!

いくらで売れるのか知りたい方は
まずはカンタン無料査定でご相談下さい!

ララハウス株式会社 大宮支店

0120-22-8282

物件番号B01642-002221

近隣マンション情報

セザール東大宮にお問い合わせ

必須の項目はご記入をお願いします
  • お問合せ内容必須
    【その他】
  • お名前必須
  • E-mail必須

    ※ご記入いただいたメールアドレス宛てに、お問合せ内容の確認メールをお送りいたします。
    ※Yahoo!メールなどのフリーメールをご利用の場合、迷惑メールフォルダに入る場合があります。
    迷惑メールのフォルダ・設定等をご確認下さい。

  • 電話番号必須
※ご入力いただいたお客さまの個人情報は、「個人情報の取扱いについて」に基づき適正に取り扱います。必ずお読みになり、同意の上お問い合わせください。