上尾市今泉 中古戸建て 埼玉県上尾市今泉3丁目|3,380万円の中古一戸建て|ララハウス株式会社大宮支店
| 価格 | 3,380万円 ![]() |
||||
|---|---|---|---|---|---|
| 所在地 | 埼玉県上尾市今泉3丁目
この地域周辺の物件を見る |
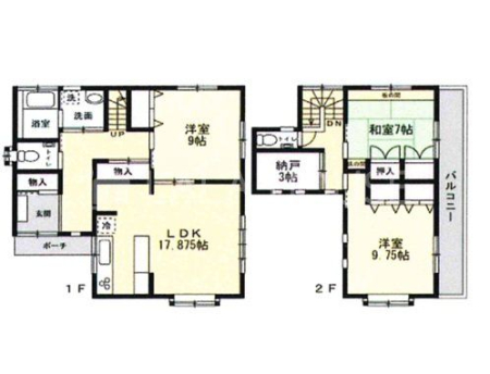
土地面積 | 165.3m² (50坪) | 建物面積 | 120.4u |
| 築年月 | 2004年3月築 | 間取り | 3SLDK (-) | ||
| 交通 |
JR高崎線 上尾 徒歩25分
|
||||
| 特徴 |
|
|---|---|
| セールスコメント | 【POINT】 〇土地50坪・区画整理地・内装リフォーム済物件♪ 〇スーパー・コンビニ・ドラッグストア徒歩6分圏内☆ ○料理好きも納得、キッチンリフォーム済! 〇ワイドスパンバルコニーで洗濯物も沢山干せます♪ ■【0120-22-8282】へお気軽にお問い合わせください■ ■【ララハウス 大宮支店】で検索♪ 最新情報を毎日更新中です! 弊社ホームページをご利用くださいませ☆☆ |
| 採光面 | - | 構造/階数 | 木造/地上2階建 |
|---|---|---|---|
| 建ぺい率 | 50(%) | 容積率 | 100(%) |
| 駐車場 | 有 | 現況/引渡し | 空家/即時 |
| 土地権利 | 所有権 | 私道負担面積 | - |
| 接道状況 | 接道: 西 4m 公道 道路幅: 14.1m | 用途地域 |
第一種低層住居専用地域
|
| セットバック | なし | 法令上の制限 | - |
| 地目 | 宅地 | 地勢 | 平坦 |
| 建築確認番号 | 都市計画 | 市街化区域 | |
| 取引態様 | 仲介 | ||
| 情報更新日 | 2026年04月20日 | 次回更新日 | 2026年05月04日 |
| 小学校区 | 上尾市立今泉小学校 (埼玉県上尾市) この学区の他の物件を見る |
中学校区 | 大谷中学校 (埼玉県上尾市) この学区の他の物件を見る |
|---|
| 価格 | 万円 | ||
|---|---|---|---|
| 年利率 | % |
||
| ボーナス払い | 返済年数 | ||
| 頭金 | 直接入力する | 万円 | |

毎月のご返済額 |
ボーナス(×年2回) |
物件価格3,380万円 |
◆上尾駅徒歩25分・自転車約7分☆
◆3SLDK・南向き・カースペース1台♪
◆新規リフォーム済
◆日当たり良好
◆全居室収納付き・納戸あり