さいたま市見沼区東大宮56期2号棟 新築戸建て 埼玉県さいたま市見沼区東大宮6丁目|6,299万円の新築一戸建て|ララハウス株式会社大宮支店
| 価格 | 6,299万円 ![]() |
||||
|---|---|---|---|---|---|
| 所在地 | 埼玉県さいたま市見沼区東大宮6丁目
この地域周辺の物件を見る |
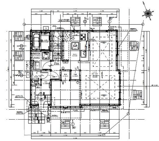
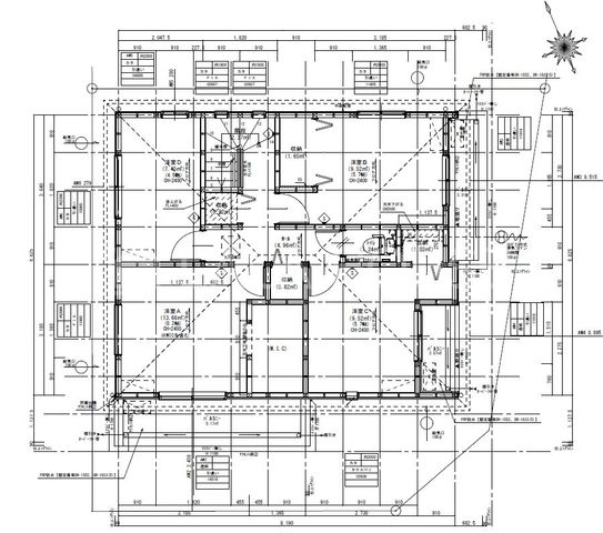
土地面積 | 103.03m² (31.16坪) | 建物面積 | 108.67u |
| 築年月 | 2026年5月築 | 間取り | 4LDK (-) | ||
| 交通 |
湘南新宿ライン宇須 東大宮 徒歩13分
東武野田線 七里 徒歩34分 |
||||
| 特徴 |
|
|---|---|
| セールスコメント | 【POINT】 〇ヤオコー徒歩10分・ハレノテラス徒歩11分♪ お買い物便利な環境が整っています☆ ○島小学校徒歩7分・土呂中学校徒歩23分! 〇東大宮中央公園徒歩5分☆ 休日は散歩したり広々と遊べます☆ ■【0120-22-8282】へお気軽にお問い合わせください■ ■【ララハウス 大宮支店】で検索♪ 最新情報を毎日更新中です! 弊社ホームページをご利用くださいませ☆☆ |
| 採光面 | 東南 | 構造/階数 | 木造/地上2階建 |
|---|---|---|---|
| 建ぺい率 | 60(%) | 容積率 | 200(%) |
| 駐車場 | - | 現況/引渡し | -/相談 |
| 土地権利 | 所有権 | 私道負担面積 | - |
| 接道状況 | 接道: 東南 8.8m 公道 道路幅: 8m | 用途地域 |
第一種中高層住居専用地域
|
| セットバック | - | 法令上の制限 | - |
| 地目 | 畑 | 地勢 | |
| 建築確認番号 | 第26UDI1W建号 | 都市計画 | 市街化区域 |
| 取引態様 | 仲介 | ||
| 情報更新日 | 2026年02月15日 | 次回更新日 | 2026年03月01日 |
| 小学校区 | さいたま市立島小学校 (埼玉県さいたま市) この学区の他の物件を見る |
中学校区 | 土呂中学校 (埼玉県さいたま市) この学区の他の物件を見る |
|---|
| 価格 | 万円 | ||
|---|---|---|---|
| 年利率 | % |
||
| ボーナス払い | 返済年数 | ||
| 頭金 | 直接入力する | 万円 | |

毎月のご返済額 |
ボーナス(×年2回) |
物件価格6,299万円 |
![]() |
![]() |
さいたま市見沼区東大宮6丁目
6099万円~6299万円 |
◆東大宮駅徒歩13分・自転車5分!
◆敷地面積約31坪
◆ヤオコー徒歩10分・ハレノテラス徒歩11分♪
◆東大宮中央公園徒歩5分!